In 1962, the need for a large indoor shelter became apparent. In addition, Bert was considering an expansion of the Swim Club including a new pool and separate locker and dining facilities. In order to develop a plan, he turned to his friend, architect Mandel Sprachman.
From conception, the design was modular to allow for expansion. It included several buildings linked together by hallways. The ultimate use of each building changed over time as the separate Swim Club plans were abandoned.
Design Objectives:
Preliminary Sketches
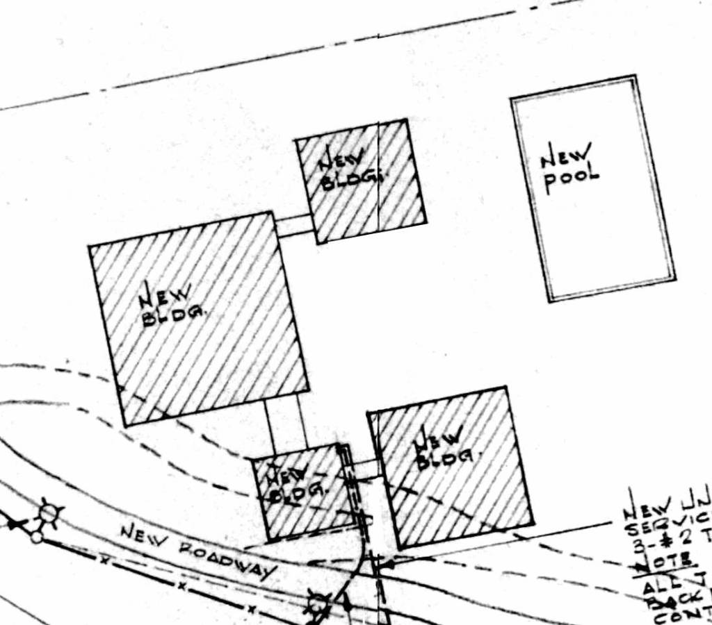
As seen in the sketch below, the intention was to add a new pool in the Treehouse Field location. The eventual Main Office building was not part of this plan. It is shown in the sketch below as a, “future locker room”. The placement of the Terrace in this sketch is different than the final design which saw it located further ahead of the Auditorium with a different hallway placement.
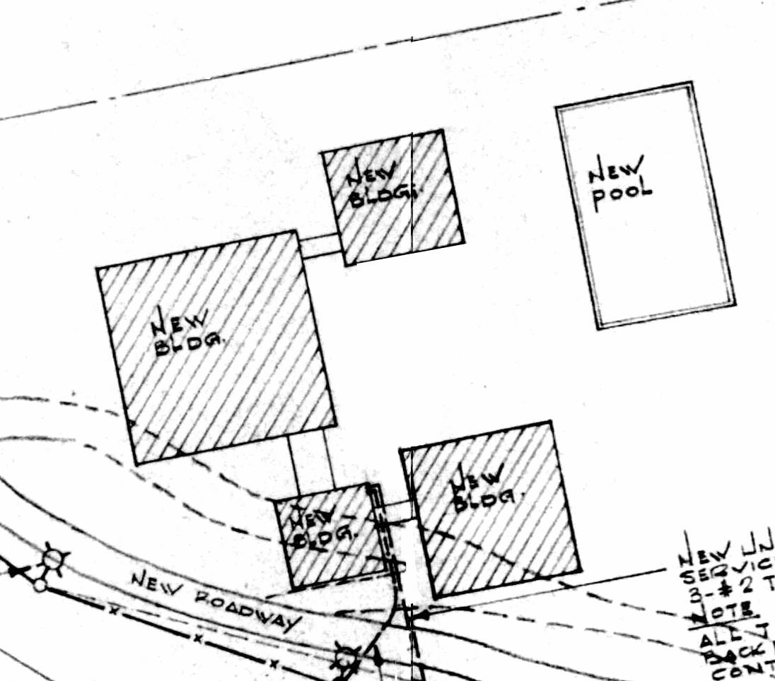
This survey shows the final placement of the buildings relative to one another:
Bert’s notes documenting the requirements for the complex:
OFFICE WING
This is not the main office. It was built later. This is the part with the fireplace. However, the first concept did not include a fireplace:
The fireplace was a last-minute addition to the building in 1964 because the ski club was starting up. It was envisioned as a popular spot in the winter time – and likely was. The ski club only lasted for a few years turning this spot into a curiosity.
The updated design including the fireplace:
The original design for the fireplace:
Fireplace after completion:
TERRACE
The final design of the Terrace along with the layout for the kitchen:
Construction Estimate – November 1964:
Construction Estimate – August 1964
Construction Estimate – November 1964:
Construction Estimate – December 1964:
Auditorium Roof Blueprints:
Auditorium Floor Layout:
Paint Colours for Complex:

Miscellaneous Invoices:
Lighting:
Hardware:
Benches for fireplace:
Hardware:
Hardware:
Submission to Canadian Architect Magazine:
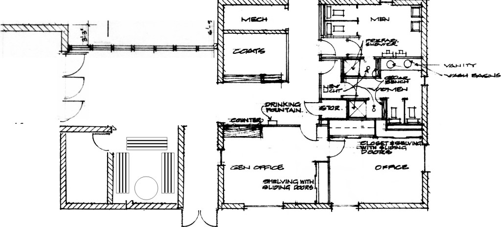
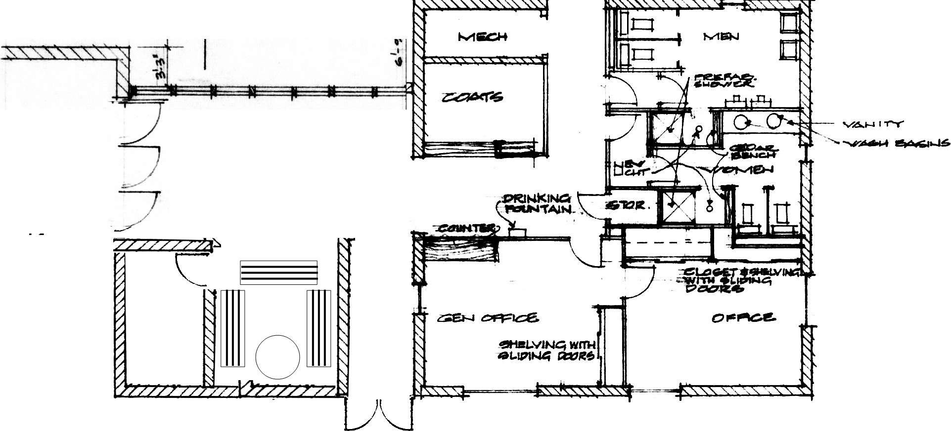
Building the Office Addition
Blueprints 1971:
Main Floor:
Basement:
A Proposal for a Locker Room with Sauna and second floor storage. This was to be located behind the Auditorium:

Letters from Bert:
CONSTRUCTION & USE
With increasing enrolment and a need for more indoor facilities, plans for the auditorium began in 1963. Prominent Toronto architect Mandel Sprachman designed the auditorium and adjacent buildings, receiving an award for his design. The project was featured in The Canadian Architect magazine in March, 1965. Among his many projects, Sprachman also restored the city’s legendary Elgin-Winter Garden vaudeville house to its original splendour.
The auditorium was used for numerous purposes in the early years. The swim club held dances and bridge tournaments. Several weddings were also held there. The ski club had Friday night dances leading Bert to star a short-lived Friday night dance club for teenagers. David Clayton Thomas was one of the first performers. Adjacent to the Auditorium was the Terrace, which included washrooms and a full kitchen. It was later used as a snack bar for the ski and swim clubs and was occasionally used for camp activities. More about the Terrace HERE. The complex also included a fireplace and office building.
Construction of the Auditorium began in the fall of 1964 and the building was ready for use the following summer.
The black & white photos in this post were scanned from an uncut roll of 35mm film negatives. It is unlikely that they were ever printed before.
View down the hill at the start of construction in 1964:The first Auditorium beams being placed. Looking east, with Terrace in background:View from future location of Sugar Shack. Terrace on the left:View from parking lot. Terrace in background. Cedar shingles for Auditorium roof in foreground:
View from the bottom of the parking lot:Bert in front of the auditorium during construction. 1964:Shingle application. 1964
Terrace Construction
The Terrace building was the first to be built. The following 2 photos taken from future location of Auditorium doors. The window on the right (in the lower picture) would later be replaced with a door:
Photo taken from behind future Auditorium. Looking N/E:
Photo taken from Treehouse Field:
Office Building – taken from parking lot. This is the office used by the supervisors. Behind it is the fireplace and auditorium. The door at right would later attach to the main office via a glassed corridor. The main office building was not built at this time. It was added several years later.
After completion:
The “Fireplace”:
Interior Views:
The design of the auditorium complex as featured in the March 1965 issue of The Canadian Architect.





















































