It was a last-minute addition to the building because the ski club was starting up. It was envisioned as a valuable spot during the winter time – and likely was. However, the ski club only lasted a few years after which the fireplace became a curiosity.
It was not included in the original design show below:
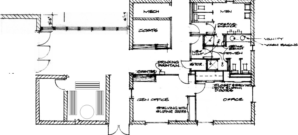
Here is a preliminary design in which the fireplace has been added:
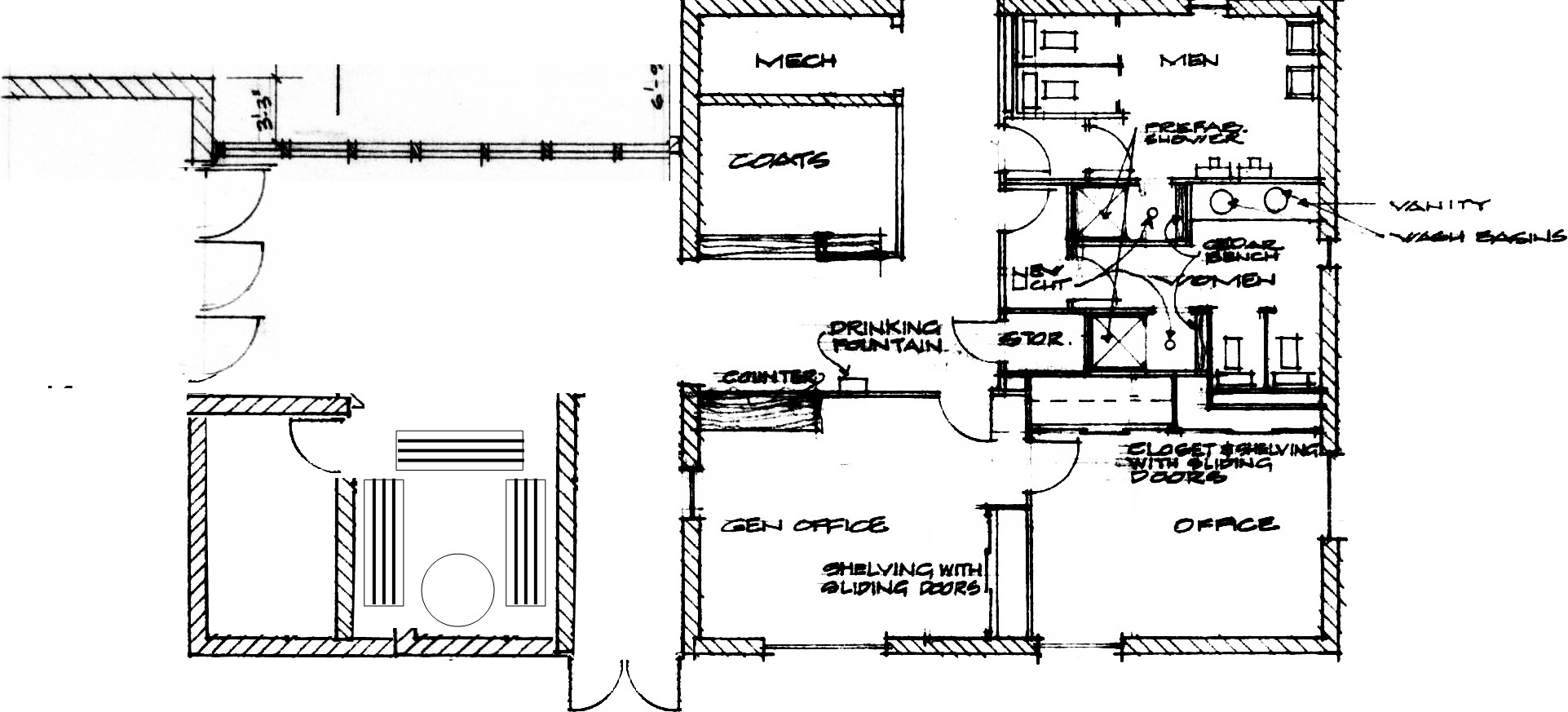
The fireplace in the design above was changed. The final design:
In the late 80’s a small addition provided summer storage for the Board Of Education:
After completion in 1964:
The Fireplace area between the Auditorium and the Office. 1982





